منتجات
ارتفاع ضغط صمام البوابة ذات الحواف
  • ارتفاع ضغط صمام البوابة ذات الحوافارتفاع ضغط صمام البوابة ذات الحواف

ارتفاع ضغط صمام البوابة ذات الحواف

يعتبر مصنع JQF Valve مصنعًا محترفًا لصمام البوابة ذات الحواف العالية الضغط في الصين. نحن ننتج صمامات بوابة ذات حواف عالية الضغط وعالية الجودة، والتي تم تصميمها خصيصًا لتحمل بيئات الضغط العالي والاستفادة من وصلات الحواف. بدءًا من التصميم واختيار المواد وحتى عمليات التصنيع ومعايير الاختبار، فإن متطلبات صمامات البوابة ذات الحواف عالية الضغط تتجاوز بكثير متطلبات صمامات البوابة العادية، مما يضمن تشغيلها الآمن والمستقر في المجالات الصناعية الهامة مثل صناعات البترول والكيماويات والطاقة.

The Z61Y-250 and Z61Y-320 durable High Pressure Flanged Gate Valve manufactured by JQF Valve factory are manual butt-welded connection valves with a single-rod wedge-shaped rigid single-disc design. The valve seat sealing surface material is hard alloy, with a nominal pressure of PN250~PN320. The valve body material is carbon steel high-temperature and high-pressure power station gate valve.

معايير التصميم

معيار التصميم: GB/T 12234-2007
طول الهيكل GB/T 12221-2005
حجم وصلة اللحام التناكبي NB/T 4704-2014
الاختبار والتفتيش ملحوظة/T 4704-2014
الضغط - درجة الحرارة: NB/T 4704-2014

معلمات الأداء

نموذج ب.ن ضغط العمل/ميجا باسكال درجة الحرارة المناسبة/درجة مئوية الوسائط المناسبة جسم
Z61Y-250 250 25 70570 بخار WC9
Z61Y-320 320 32 70570 بخار WC9

مادة الجزء الرئيسي

نموذج جديد
جسم لوحة صمام كاب أم الجذعية حشو
Z61Y-250 WC9 WC9 WC9 38CrMoA1A الجرافيت المرن
Z61Y-320 WC9 WC9 WC9 38CrMoA1A الجرافيت المرن

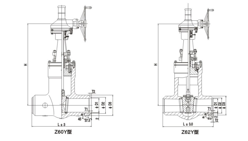
الشكل الرئيسي وأبعاد الاتصال

الاسم المميز L D H د0 الوزن/كجم
50 280 82 585 300 42
65 340 110 650 320 53
80 475 130 680 400 130
100 500 170 755 450 180
125 600 195 830 500 190
150 700 225 1050 550 320
175 750 255 1050 600 400
200 800 285 1050 650 550
225 850 300 1100 700 600

صورة الهيكل

الميزات الهيكلية

تعتبر هذه الصمامات البوابة ذات الحواف ذات الضغط العالي ضرورية للتحكم في تدفق السوائل في الأنظمة المختلفة، مما يوفر تنظيمًا دقيقًا وأداء طويل الأمد.

1. متينة وقوية: إن صمامات البوابة ذات الحواف الخاصة بنا مصنوعة من مواد عالية الجودة، مما يجعلها مناسبة تمامًا لمختلف البيئات الصناعية الصعبة. تعتبر الوصلة ذات الحواف آمنة للغاية، مما يقلل من احتمالية التسربات ويضمن إحكام الغلق.
2. التحكم الدقيق: يوفر صمام البوابة ذات الحواف ذات الضغط العالي تحكمًا دقيقًا في معدل تدفق السوائل في خط الأنابيب. سواء كنت بحاجة إلى فتح أو إغلاق أو ضبط معدل التدفق، فإن التشغيل يكون سلسًا. يعد هذا التحكم الدقيق مهمًا للحفاظ على كفاءة النظام بشكل عام ومنع حالات الفشل التشغيلي.
3. مقاومة للتآكل: جميع المواد المستخدمة لتصنيع صمام البوابة ذو الحواف تم اختيارها خصيصًا لمقاومتها القوية للتآكل. حتى في الظروف القاسية، يمكنه الحفاظ على التشغيل الطبيعي لفترة طويلة دون مشاكل.
4. قابلية التطبيق على نطاق واسع: يمكن استخدام صمامات البوابة ذات الحواف في العديد من الإعدادات الصناعية المختلفة. يسمح هذا التصميم متعدد الاستخدامات بتكييفه بمرونة مع الأنظمة المختلفة، كما أن التثبيت والتكامل سهلان.
5. الصيانة البسيطة: لقد أخذنا في الاعتبار سهولة الصيانة أثناء مرحلة التصميم. من السهل تفكيك وإعادة تجميع مكونات الصمام، مما يجعل الفحص والصيانة الروتينية أمرًا بسيطًا وفعالاً من حيث التكلفة.

الكلمات الساخنة: صمام بوابة ذو حواف عالية الضغط، الصين، مخصص، جودة، متين، متقدم، الشركة المصنعة، المورد، المصنع، في المخزون
إرسال استفسار
معلومات الاتصال
  • عنوان

    رقم 1، طريق الشمال الأول، المدينة الجديدة المصنوعة من الفولاذ المقاوم للصدأ، طريق Lecong Steel World West، منطقة شوند، مدينة فوشان، مقاطعة قوانغدونغ، الصين

  • بريد إلكتروني

    jinqiufamen@gmail.com

للاستفسارات حول صمامات البوابة، والصمامات الأرضية، وصمامات الفحص أو قائمة الأسعار، يرجى ترك بريدك الإلكتروني لنا وسنكون على اتصال خلال 24 ساعة.

X
نحن نستخدم ملفات تعريف الارتباط لنقدم لك تجربة تصفح أفضل، وتحليل حركة مرور الموقع، وتخصيص المحتوى. باستخدام هذا الموقع، فإنك توافق على استخدامنا لملفات تعريف الارتباط. سياسة الخصوصية
يرفض يقبل